The Handsome

Floor Plans

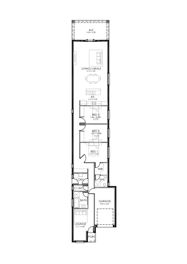
Beds: 3
Baths: 2
Dimensions: 6.70 x 33.75 m

Overview

Inclusions:

  • 2700mm internal ceilings
  • 90mm cove cornice throughout
  • Soft close drawers to Kitchen
  • Overheads cupboards in Kitchen to ceiling
  • Built in robes to Bed 2 & 3
  • Chrome standard mixer tapware throughout
  • Reverse Cycle Ducted air-conditioning
  • Colorbond automatic roller door
  • Mirrors to bathrooms full width of vanity cupboards
  • Timber laminate to main floor from Builders standard
  • Carpet to bedrooms from Builders standard
  • Natural finish concrete paths and driveway
  • Front landscaping including irrigation, mulch and plants
  • Rear landscaping includes approx. 20m2 instant turf, mulch, plants and irrigation
  • Letter box located at front of property
  • TV antenna
  • Para line – Clothesline
  • Holland blinds to all windows except wet areas
  • Vertical blinds to sliding doors

Related Properties